井堀北団地

350万円

福岡県北九州市小倉北区井堀2丁目1-31

日豊本線「南小倉」駅徒歩27分

価格
350万円
間取り/面積
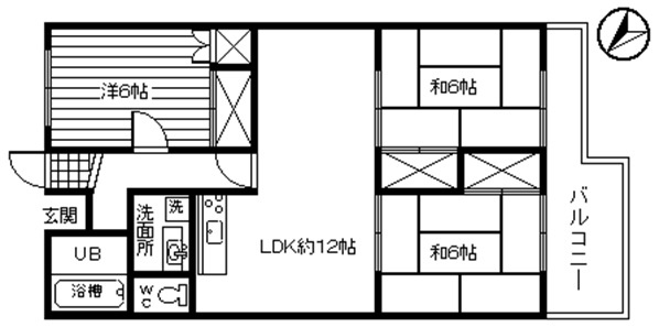
3LDK/64.47㎡
所在地
福岡県北九州市小倉北区井堀2丁目1-31
築年
1975年11月(築50年)
駐車
-
交通

日豊本線南小倉」駅 徒歩27分

井堀北団地の基本情報

物件名
井堀北団地
価格
350万円
築年月
1975年11月(築50年)
総戸数
-
所在地
福岡県北九州市小倉北区井堀2丁目1-31
交通

日豊本線南小倉」駅 徒歩27分

井堀北団地の詳細情報

設備条件
設備(その他)
    -
駐車場/月額
-/-
土地権利
所有権
国土法届出
不要
用途地域
第一種中高層住居専用
戸数
- / -
管理形態
自主管理
管理員の勤務形態
-
管理会社
-
取引態様
仲介
引渡し
相談
備考
立地する第一種中高層住居専用地域は、多くの建物が密集しておらず、オフィスビルの建設も許可されていない地域です。快適な生活のために設計された中古マンションです。平坦地なので、擁壁・造成費用を削減できます。当社なら、お客様のご希望に適した物件、あるいは生活スタイルに適した物件をご紹介致します。北九州市小倉北区で物件をお探しなら、ご希望の条件を当社にお聞かせ下さい。

井堀北団地のコメント(おすすめポイント)

気になるイチオシ物件情報:「井堀北団地」。便利で快適な生活ができる中古マンションです。住宅地として良好な居住環境な第一種中高層住居専用地域はおすすめですよ。平坦地の物件なので、ガーデニングを楽しんだり、畑をつくることもできますよ。北九州市小倉北区で不動産情報をお求めなら、当社にお任せ下さい。交通の利便性の高い南小倉物件や当社オススメ物件などご紹介しているので、ご連絡お待ちしております。

井堀北団地で募集中の物件

  1. 505

    19.50坪 (64.47㎡)

    350万円(17.95万円/坪)

近隣の物件

  1. 北九州市小倉北区井堀1丁目

    3LDK (74.32㎡)

    250万円

  2. 北九州市小倉北区中井5丁目

    4DK (62.31㎡)

    580万円

井堀北団地

お気軽にお問い合わせください

無料お問い合わせ

有限会社段栄ホーム

092-823-3900

10:00~17:00

(休:日曜日・祝日)